PLAN
リノベーションプラン
テーマ別リフォームメニュー 好きなことを、暮らしの中心に。
趣味やこだわりを、住まいの一部としてかたちにする。
料理が好きな人。仲間が集まり、自然と人が集まる場所をつくりたい人。
庭の景色を、日常の中で楽しみたい人。住まいを活かして、将棋教室を開いた人。
このプランは、「好きなこと」や「やりたいこと」を起点に、
住まいを自由に組み替えるリノベーション・リフォームプランです。
リノベーションのポイント
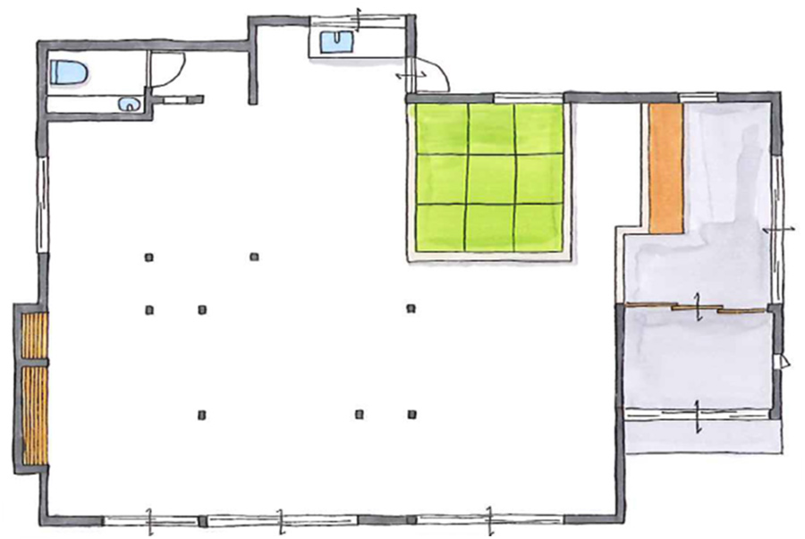
1)プロ仕様のキッチンを、普段使いとは別に設ける
2)キッチンを囲むロの字型の空間で、仲間が集まる住まい
3)吹き抜けをつくり、2階からも全体を見渡せる空間構成
4)広縁をリビングに変え、庭の景色を暮らしに取り込む
5)マンションの一室・一フロアを、趣味や教室の場として活用
「住む」と「使う」を分けず、
住まいの中に、活動の場を組み込みます。
暮らしは、もっと自由でいい。

リノベーションやリフォームは、
単に古くなった部分を直すだけではありません。
間取りを変える。用途を変える。住まいの役割を変える。
構造や条件を踏まえながら、
どこまで自由に表現できるのかを一緒に考え、形にします。
好きなことと、暮らす。
ライフスタイルや趣味は、年齢や環境とともに変わっていきます。
だからこそ、住まいも変えられる余白を残す。
その時々の「好き」に合わせて、暮らしを更新できる住まいをつくります。
-
before

-
after

自分らしい暮らしは、
つくれます。
好きなことに向き合う時間。人と集まる場所。
自分にとって心地よい距離感。
それらを、住まいの中でどう実現するか。
答えは、ひとつではありません。
リノベーション・リフォームで、住まいをもっと自由に。
より自分らしい暮らしを、形にしていきましょう。
-

洗い出しの⼟間と格⼦の引き⼾から⽞関を⾒る。⽇本本来の建築の美しさを作り出し落ち着きのある場所へ導きました。
-

格⼦の引き⼾を開けると正⾯に丸窓があり照明とのアングルが趣のある空間になりました。欅の⼀枚板もこだわりのポイントです。
-

既存の柱の位置を活かした間取りの⼀例。コーナーの⼀⾓に畳スペースを設け、天井は網代天井仕上げとしてフロアーのアクセントの場所として変化を楽しめます。
-

開放的な空間へ。従来の構造躯体を保存しつつ、檜の単板を丁寧に貼り付けてきれいに仕上げています。⼩屋裏の梁や⽕打ち梁等は渋めな⾊にすることでぐっと上部が引き締まります。内装はすべて漆喰仕上げ。柔らかな雰囲気が漂います。
-
造作建具の例。旧家屋に使⽤されていた建具をリニューアル。ガラスだけを利⽤し、室内のFIX窓の飾り窓へ。今はなき昭和の名品ガラス模様。リフォームならではの伝統を守る形です。
-
敷地全体の外構も整え、外観に合わせ和⾵テイストを基調とし構成したお庭となりました。窓越しに⾒える⾵景を⼤切に植栽等の配置を考え、外からも中からも楽しめる建物に⽣まれ変わりました。
-
-
FLOW リノベーションの流れ
-
Step.1
ヒアリング
今の住まいの不満や、これからの暮らしについてじっくりお話を伺います。漠然としたイメージでも構いません。
-
Step.2

現地調査・プラン検討
建物の状態や構造を確認し、実現できること・難しいことを整理します。その上で、最適なプランを検討します。
-
Step.3
設計
暮らしやすさ、動線、将来性を考えながら、具体的な設計に落とし込みます。
-
Step.4
施工・品質管理
設計内容をもとに、丁寧に施工を進めます。工事中も品質管理を徹底します。
-
Step.5

アフターサポート
お客様の生活が変わりゆく暮らしの中で、いつでもご相談いただける距離でサポート
構造に縛られない、
住まいづくり。
木造住宅はもちろん、
RC造など、木造以外の構造にも対応可能です。
住まいの構造を正しく理解したうえで、
大胆なプランニングから、細かな調整まで。
「やりたいこと」を、現実的な形に落とし込みます。

